SoFi Stadium 에서1.5마일 거리-

글쓴이: aptapt  |  등록일: 01.15.2026 21:47 pm  |  조회수: 130
지역
Inglewood 
종류
상가 
가격
$1 
연락처
213-335-4258 
문의(ASK)
Oh 
SoFi Stadium 에서1.5마일 거리-
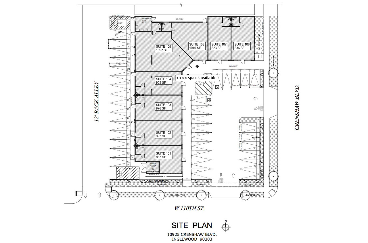
가능한 업종으로는 식당,소매점,치과, 책 캐싱,UPS, 보험회사, 컴퓨터 관련, 한방병원 등.
101-CHICKEN WING (한인 주인 15년 운영중)
102- DO YOUR HAIR
103- SMOCK 4 LESS
104- Available (903Sf) Rent $2,700/ month (include CAM charge)
105- Available (1592Sf) Rent $4,800/month (include CAM charge)
106- Available (1010 Sf) Rent $2,980/month (include CAM charge)
107- SPANISH STYLED CAFÉ
108-SPANISH STYLED CAFÉ
106 +107 함께사용 가능 (2602sf) $7848/ month (include CAM charge)

주소:10925  Crenshaw Blvd Inglewood CA 90303
110가 / Crenshaw  코너에 위치. 35대의 파킹
Sbcoh38@gmail.com
(213) 820 3759

DISCLAIMERS: 이 글은 개인회원이 직접 작성한 글로 내용에 대한 모든 책임은 작성자에게 있으며, 이 내용을 본 후 결정한 판단에 대한 책임은 게시물을 본 이용자 본인에게 있습니다. 라디오코리아는 이 글에 대한 내용을 보증하지 않으며, 이 정보를 사용하여 발생하는 결과에 대하여 어떠한 책임도 지지 않습니다. 라디오코리아의 모든 게시물에 대해 게시자 동의없이 게시물의 전부 또는 일부를 수정 · 복제 · 배포 · 전송 등의 행위는 게시자의 권리를 침해하는 것으로 원칙적으로 금합니다. 이를 무시하고 무단으로 수정 · 복제 · 배포 · 전송하는 경우 저작재산권 침해의 이유로 법적조치를 통해 민, 형사상의 책임을 물을 수 있습니다. This article is written by an individual, and the author is full responsible for its content. The viewer / reader is responsible for the judgments made after viewing the contents. Radio Korea does not endorse the contents of the articles and assumes no responsibility for the consequences of using the information. In principle, all posts in Radio Korea are prohibited from modifying, copying, distributing, and transmitting all or part of the posts without the consent of the publisher. Any modification, duplication, distribution, or transmission without prior permission can subject you to civil and criminal liability.

상법 · 소송

사고&팔고

연예소식

칼럼